

















Furnished
Suite 415
3,910 RSF
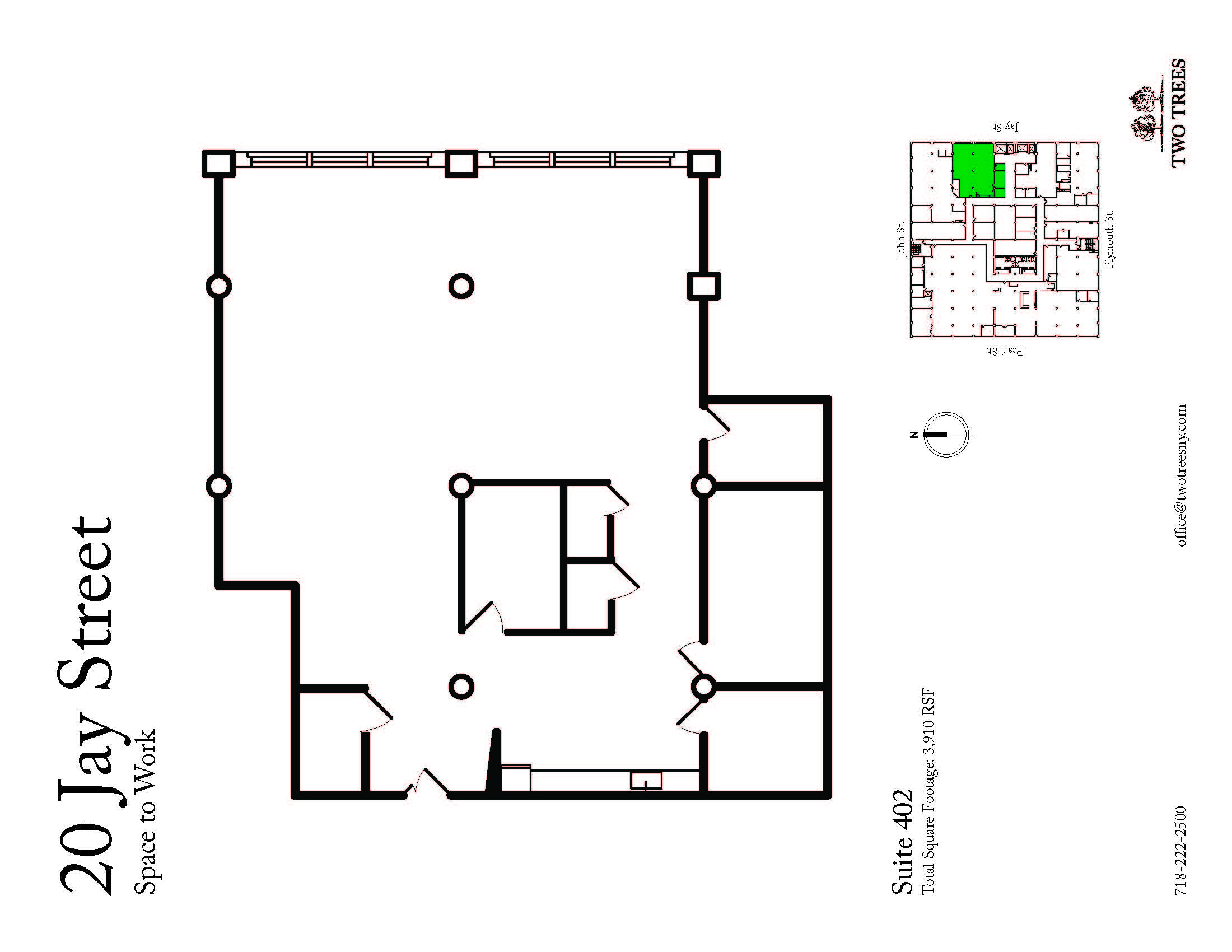
Suite 402, 20 Jay Street











20 Jay Street
3,910 RSF
Suite 402
Bright space featuring two (2) private offices, two (2) conference/meeting rooms, two (2) phone rooms, and an open work area for 20+ people and a wet pantry.
Located just north of the Manhattan Bridge and steps from the F train, 20 Jay Street reflects the creative spirit of DUMBO. One of Two Trees’ most sought-after addresses, it offers light-filled offices and flexible studios surrounded by the neighborhood’s dynamic community of makers, innovators, and entrepreneurs.






Flexible lease terms with the ability to grow
Fully furnished office space available
24/7 access to your space, including holidays and weekends
Large, landscaped roof decks with WiFi
Shared conference rooms and phone rooms
Pet-friendly
Newly renovated and attended lobby
Bicycle entry and parking
Parking garage
Private wellness / parents room
An easy commute to a neighborhood where you actually want to spend your day








45 Main Street Rooftop
Looking for more options? Explore these similar listings.


















Furnished
Suite 415
Let us help you find the office space that is right for you and your business.